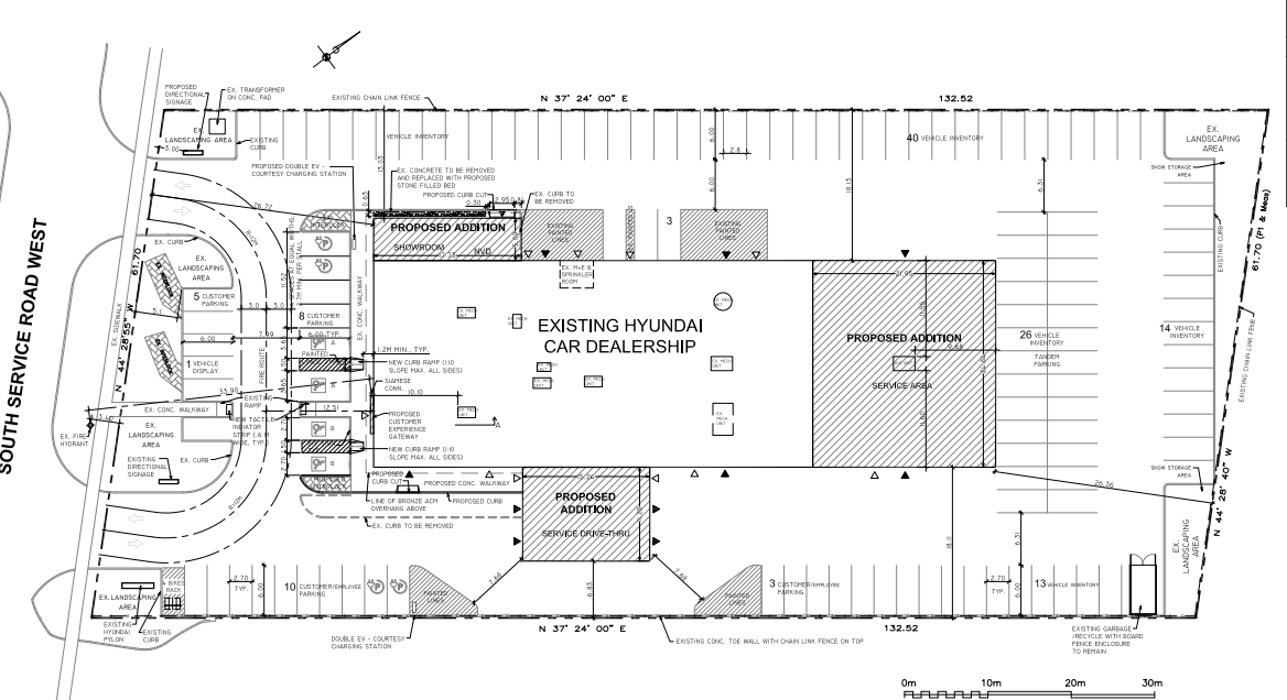
Looks like there’s lots of construction coming north of Dundas in Oakville. More residential development means the area will need more transit and infrastructure. Oakville Hyundai is also upgrading their dealership lot. The old Bronte Village Mall will be being developed as a residential rental mixed use property, with completion slated for 2020. The land the Oakville Trafalgar Memorial Hospital was on will be used to construct 19 single detached dwelling lots, two blocks of town homes (16 units total), a new public street, and a future community centre. There is a Zoroastrian place of worship near and Trafalgar that will also be upgraded. #oakvilledevelopment #oakvillerealestate







